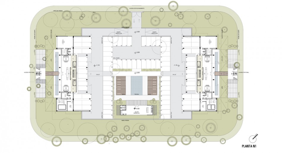
Pinares de Carrasco, Carrasco - Montevideo

17.000 m²

2010